| |
|

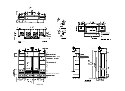
FAMILY ROOM ENTERTAINMENT UNIT , Custom designed to accommodate client’s
needs & media equipment, This furniture piece was fabricated in cherry wood
Attention was given to all decorative details such as applied moldings,
sloped pediment with decorative spindles, glass display shelves with accent
lighting & antiqued brass hardware.
|